Highlights:-
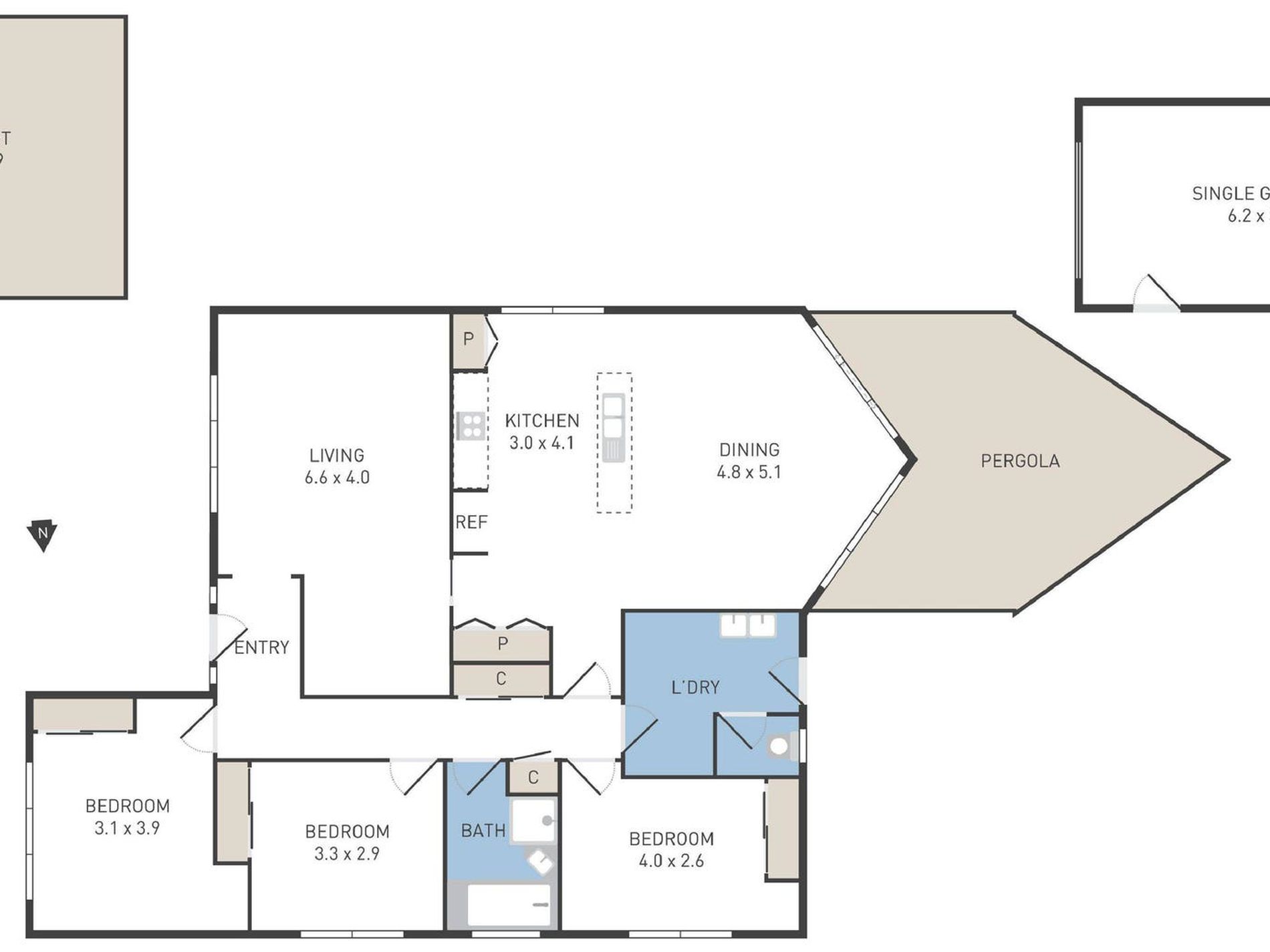
1. Perfect outdoor entertainment: - Undercovered paved pergola looking out to huge backyard perfect for families to enjoy
2. Centrally located close to Pacific Werribee Shopping Centre, Werribee Train station, Werribee Mercy Hospital, and Watton Street. Easy access to Princes Freeway to both Melbourne and Geelong.
Features: -
1. Good-sized three bedrooms with built-in robes, hardwood timber flooring, and central bathroom,
2. Multiple living areas: - A separate living room adjacent to the large kitchen with abundant storage, separate dining, and a great-sized lounge room at the front of the home.
3. Approximately 661m2 land with a double carport, single garage, and a storage shed at the rear of the property
4. Split system air conditioning and ceiling fans.
5. Other features include outside awnings, skylight established gardens, and a handy storeroom in the yard.
Location: -
Close to Werribee Train Station, Healthcare facilities, Aqua Pulse, Pacific Werribee Shopping Centre, Schools and Freeway
Note: -
Online applications will be processed quicker
Features
- Air Conditioning
- Split-System Air Conditioning
- Fully Fenced
- Outdoor Entertainment Area
- Shed
- Broadband Internet Available
- Built-in Wardrobes
- Floorboards

















